 
                    Digital Nomad Tiny House Community - Hilversum
Tijdens mijn pre-master Interieurarchitectuur mocht ik minimaal drie tiny houses voor het gebied rondom Rading 113-A in Hilversum ontwerpen. Dit plangebied heeft een interessante geschiedenis als voormalig militair opslagterrein. Tegenwoordig staan er veel lege loodsen, en de natuur krijgt steeds meer grip op het gebied: gras en struiken groeien tussen het beton, bomen nemen langzaam ruimte in. Tussen deze vervallen structuren ontstaat een nieuw soort dynamiek: creatieve start-ups vestigen zich hier, wat het terrein een rauwe, maar veelbelovende sfeer geeft.
Voor mijn ontwerp koos ik als doelgroep de digital nomads, een groeiende groep mensen die locatie-onafhankelijk werkt. In onze sterk gedigitaliseerde wereld kun je met één klik in contact staan met iemand aan de andere kant van de wereld. De coronapandemie heeft deze manier van werken verder genormaliseerd. Dit inspireerde mij tot het ontwerpen van een community van tiny houses, passend bij deze moderne, mobiele levensstijl.
Ik heb uitgebreid doelgroeponderzoek gedaan en onder andere interviews gehouden met digital nomads. Hieruit bleek dat zij zich tijdens hun verblijf in het buitenland vaak eenzaam en vervreemd voelen. Ondanks de wens om mensen te ontmoeten, bleek het lastig om sociaal contact op te bouwen, mede door onregelmatige werktijden. Ook was er behoefte aan meer stabiliteit en comfort. Voor wie langer op één plek werkt, is een tijdelijk appartement vaak prettiger dan een hotel.
Daarnaast gaven veel geïnterviewden aan dat het moeilijk was om een gezonde balans tussen werk en privé te behouden tijdens werkreizen. Beweging en sociaal contact waren vaak de eerste dingen die wegvielen onder werkdruk.
Deze inzichten vormden de basis voor mijn ontwerp: een kleinschalige, verbonden leefgemeenschap die rust, verbondenheid en flexibiliteit biedt — midden in een gebied waar natuur, verval en herontwikkeling samenkomen.
Visualisatie
Om het ontwerp goed inzichtelijk te maken ben ik aan de slag gegaan met Vectorworks. Ik heb mijn ontwerpvisie volledig uitgewerkt in tekeningen, inclusief constructieve en technische details. Van gevelaanzichten tot detail- en installatietekeningen: elk onderdeel van het ontwerp is zorgvuldig in beeld gebracht.
Al snel bleek dat er een aantal technische uitdagingen op mij wachtten. Voor de constructie koos ik een combinatie van staalframebouw met houtskeletbouwelementen. Dit vroeg om extra aandacht voor de brandwerendheid van het ontwerp. Hoewel staal zelf niet brandt, verliest het bij hoge temperaturen zijn stijfheid, wat kan leiden tot gevaarlijke situaties. Aangezien een deel van het tiny house is ingericht als openbaar toegankelijke werkruimte, moest het gebouw minimaal 60 minuten brandwerend zijn.
Daarnaast bevat het ontwerp veel ramen met grote glasoppervlakken. Deze keuze had directe invloed op de constructieve opbouw en bracht extra uitdagingen met zich mee op het gebied van veiligheid, functionaliteit en hittestress. Het vinden van de juiste balans tussen transparantie, comfort en technische haalbaarheid was hierbij een belangrijk onderdeel van het ontwerpproces.
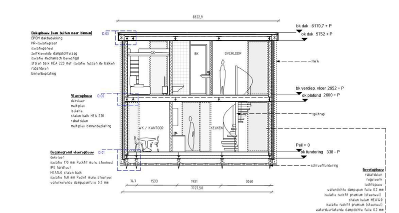
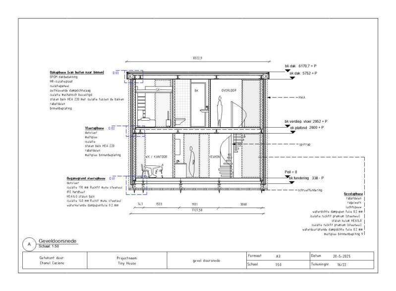
Constructie
Ik heb drie belangrijke knooppunten binnen de constructie van mijn tiny house uitgewerkt tot gedetailleerde technische tekeningen.
Het funderingsdetail laat de opbouw zien van een schroeffundering in combinatie met een staalconstructie en houtskeletbouw. Deze lichte funderingsmethode is gekozen vanwege de minimale impact op de ondergrond, de snelle montage en de mogelijkheid tot circulair hergebruik. Het is een duurzame oplossing die uitstekend past bij de bodemgesteldheid van het projectgebied. Het detail toont de overgang van fundering naar vloer- en gevelopbouw, met aandacht voor thermische isolatie, vochtwering en structurele stabiliteit.
Het kozijndetail geeft inzicht in de aansluiting van het buitenkozijn binnen de gevelopbouw. Er is gekozen voor kunststof kozijnen met zonwerend triple glas (U-waarde 0,9 W/m²K), die bijdragen aan de energieprestatie van de woning. De detaillering toont hoe luchtdichting, waterkerende folies en isolatie op elkaar zijn afgestemd om koudebruggen te voorkomen. Daarnaast is ook het ventilatiesysteem geïntegreerd: de DucoBox Silent, een CO₂- en vochtgestuurd systeem met natuurlijke toevoer en mechanische afvoer, is zorgvuldig in dit detail opgenomen.
Het dakdetail toont de opbouw van het platte dak, afgewerkt met een duurzame EPDM-laag. De dakconstructie bestaat uit een dampremmende laag, hoogwaardige isolatiepanelen en een stalen draagstructuur met isolatie tussen de liggers. De aansluiting met de gevel is zorgvuldig uitgewerkt om optimale thermische prestaties, luchtdichtheid en waterdichtheid te garanderen. Dit detail benadrukt de technische nauwkeurigheid en duurzame opbouw van het ontwerp.
In de volledige constructie is gekozen voor steenwol als isolatiemateriaal, onder andere tussen de stalen balken. Steenwol is brandveilig, draagt bij aan het beperken van vlamverspreiding en biedt belangrijke bescherming aan de stalen en betonnen onderdelen. Deze keuze is cruciaal voor het behalen van de vereiste brandwerendheid, en maakt het verschil tussen een brand in een gebouw en een gebouw in brand.
Rioleringsplan (schaal 1:50)
Het rioleringsplan toont het vuilwater- en hemelwaterafvoersysteem van de tiny house. Het systeem is ontworpen met oog op duurzaamheid en maakt onderdeel uit van een helofytenfilterinstallatie. Hiermee wordt het afvalwater op natuurlijke wijze gezuiverd. De ligging en afmetingen van de leidingen zijn afgestemd op de indeling van de natte ruimtes en voldoen aan de geldende regelgeving.
Elektraplan (schaal 1:50)
Het elektraplan geeft een overzicht van de lichtpunten, stopcontacten, schakelaars en installaties binnen de woning. De indeling is afgestemd op het gebruiksgemak en de functies van de verschillende ruimtes, met specifieke aandacht voor de flexwerkruimte en keuken. Duurzame installaties zoals zonnepanelen en een verticale windturbine zijn opgenomen in het systeem en dragen bij aan het energieneutrale karakter van de woning.
Benieuwd naar het hele project? Vind de project presentatie en portfolio presentatie hieronder!
 
             
             
             
             
             
             
             
             
             
             
             
            